Стоит ли бояться реновации?
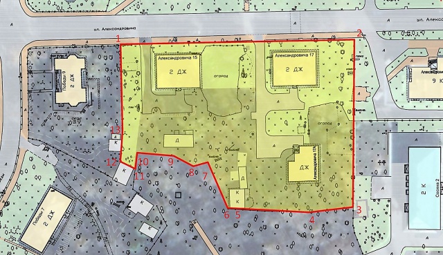
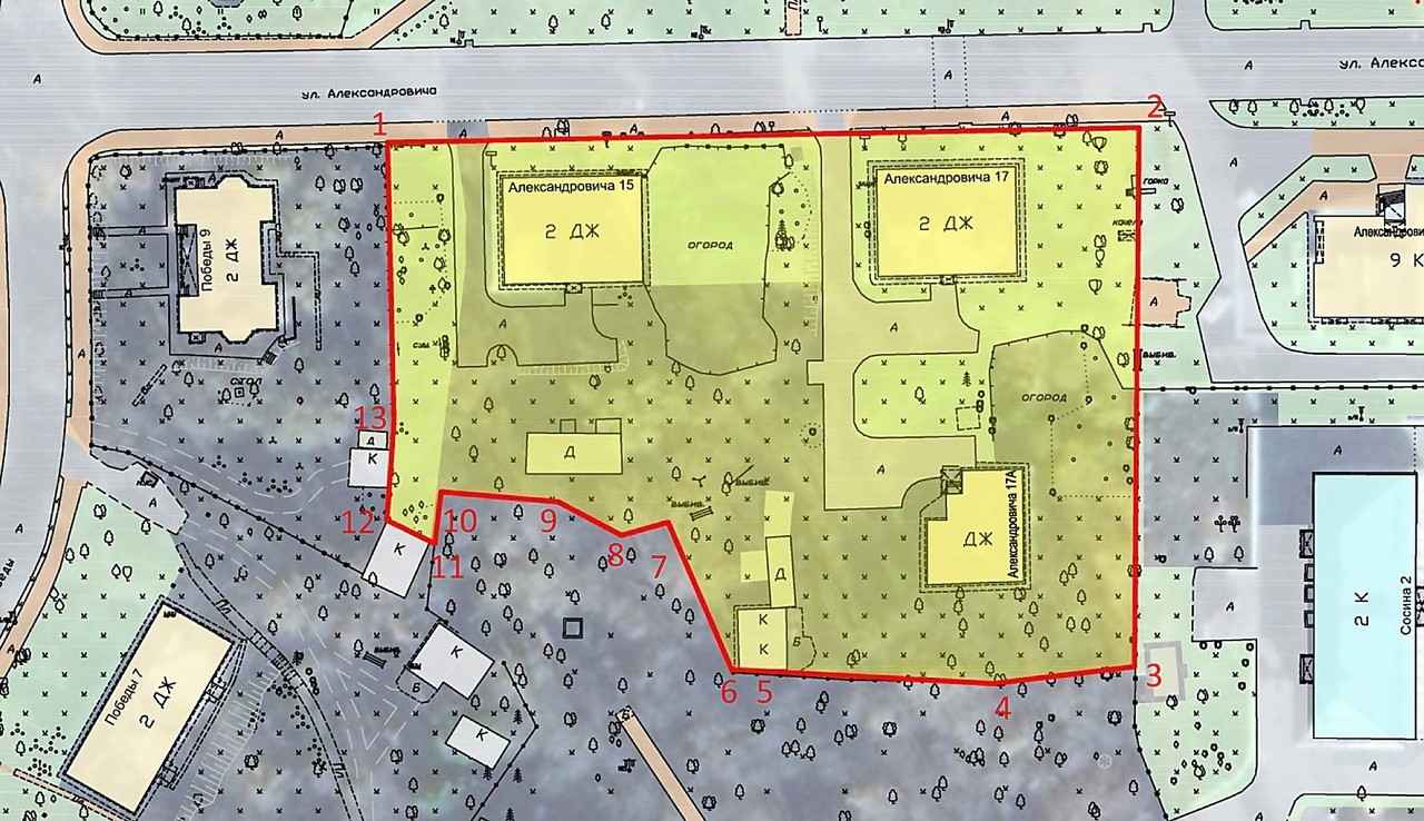
11 августа состоялся аукцион по развитию застроенных территорий. Это не совсем реновация, скорее улучшение жилищных условий и увеличение количества жилья. Несколько домов в нашем городе уже были снесены и перестроены по программе освоения и развития застроенных территорий. Однако все эти здания принадлежали муниципалитету или КБ-50, либо были признаны аварийными, а вот жителям домов №№ 15, 17 и 17а по улице Александровича пришлось столкнуться с другим аспектом этой программы.
На месте перечисленных мной домов появится новое современное жильё, однако, что ждёт собственников квартир? Поскольку такой практики в нашем городе раньше не было, мы обратились к заместителю председателя комитета по управлению муниципальным имуществом Сергею Пряхину с просьбой прояснить некоторые моменты.
Конечно, главное, что вызывает опасение у саровчан, — это судьба их квартир. Не отнимут ли их имущество? Не обманут ли, выставив за дверь с вещами? На этот вопрос есть совершенно чёткий и однозначный ответ — нет, не отнимут и не обманут.
Согласно градостроительному кодексу Российской Федерации застройщик обязан «уплатить возмещение за изымаемые на основании решения органа местного самоуправления, принятого в соответствии с жилищным законодательством, жилые помещения в многоквартирных домах, признанных аварийными и подлежащими сносу и расположенных на застроенной территории, в отношении которой принято решение о развитии, и земельные участки, на которых расположены такие многоквартирные дома».
Если говорить простым языком, то компания, выигравшая аукцион по застройке территорий, выделенных под реновацию, должна с каждым собственником заключить индивидуальный договор по передаче имущества застройщику. При этом договор должен полностью удовлетворять обе стороны, в противном случае сделка не состоится.
Это касается только тех, чья квартира находится в личном владении, то есть приватизированного имущества. Если мы говорим о муниципальных квартирах, то этим вопросом занимается администрация города. «В течение 20 дней с момента утверждения документации по планировке территории Победитель аукциона обязуется представить на согласование в Администрацию г. Сарова план-график передачи (поэтапной передачи) в муниципальную собственность благоустроенных жилых помещений для предоставления гражданам, выселяемым из жилых помещений, предоставленных по договорам социального найма, договорам найма специализированного жилого помещения.
Созданные (приобретенные) благоустроенные жилые помещения должны соответствовать санитарным и техническим требованиям и иметь чистовую отделку «под ключ». То есть в такие квартиры нужно будет привезти только свои вещи и мебель.
Заместитель председателя КУМИ Сергей Пряхин подчёркивает: «Не нужно боятся реновации, поскольку это действительно поможет закрыть проблему ветхого жилья на каждом конкретном участке. Администрация Сарова будет внимательно следить, чтобы права собственников не ущемлялись, и они получили достойную компенсацию за неудобства».
Закончить хотелось бы следующим. Нужно помнить, что никаких законных методов заставить вас расстаться со своим имуществом не существует. В любом случае, если у вас возникнет недопонимание с застройщиком можно обратиться к депутату по своему округу, который сможет выступить третьей стороной и проследить за тем, чтобы интересы его избирателей не были попраны в угоду интересам застройщика.









Коля
Выдержит все это, при строительстве многоэтажки?(про 9 этажей и говорить боюсь, походу 11 хитрых будет).