Договор о начале реновации в старом районе подписан
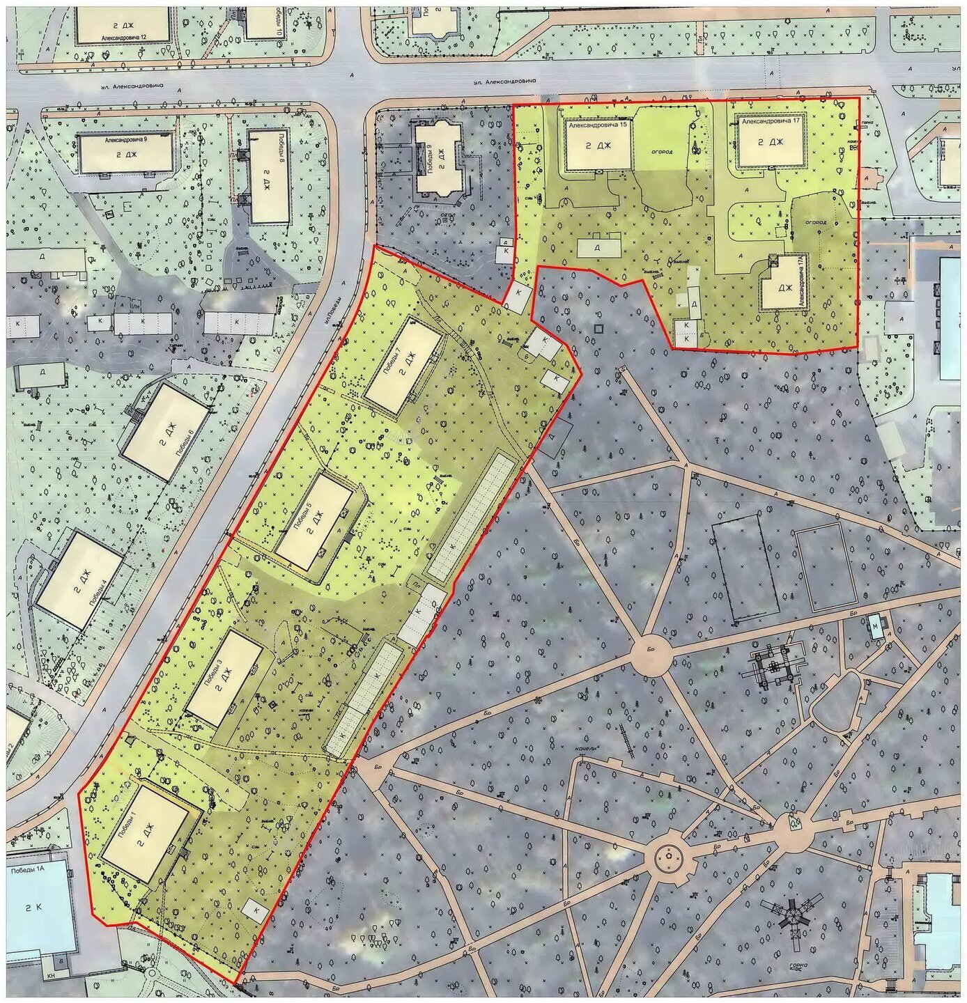
Комитет по управлению муниципальным имуществом сообщает, что получил от победителя аукциона по «реновации» участка в районе домов № 15,17,17а по ул. Александровича и № 1,3,5,7 по ул. Победы Олега Сидорука подписанный договор на развитие данной территории и 13 миллионов рублей.
Теперь Олегу Сидоруку необходимо будет представить в адрес администрации согласие всех собственников жилья на данном участке на переезд в альтернативное жилье или денежную компенсацию. Кроме того, застройщик обязан к ноябрю 2021 года представить на рассмотрение администрации проект с описанием количества жилых домов, инфраструктурного оснащения и благоустройства. На реализацию проекта застройщику отведено 5 лет.
Комитет по управлению муниципальным имуществом начал подготовку к торгам на второй этап «реновации» в данном районе. При наличии интереса со стороны инвесторов, торги планируется провести до конца текущего года.
//по материалу пресс-службы администрации Сарова








Мыслитель